Office of the authorized architect : : Leona Kordiš, mag.ing.arch.
BUILDING-ROCK
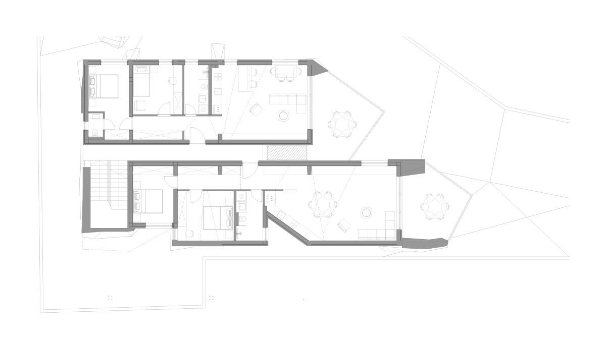
Conceptual project for an apartment building with four apartments, second row by the sea.
Project asignment::
Reconstruct the existing residential building and create four residential units.
At the same time, achieve a view of the sea from each apartment and provide an outdoor terrace on the line of sight.
The challenge was to plan eight parking spaces on the lot.
Mission accomplished:
Due to the small size of the plot for the desired number of residential units, the residential units had to be above the garage.
The result is a building on stilts. The gallery concept was chosen due to the treatment of apartments as houses.
Greenery is integrated in the gallery, and as soon as you arrive at each apartment, a view of the sea opens up.
Each room in the apartment has natural ventilation, and the outdoor space is an extension of the living space.
The rock concept is taken from nature. locations.
The plot is uneven from the road, which revealed the rock on the northeastern edge of the plot.
That is why the building is shaped like a sculpture.