Skip links
Ured ovlaštene arhitektice : : Leona Kordiš, mag.ing.arch.

Vila Dalmatina 3 u 1

Idejni, Glavni i Izvedbeni projekt za višestambenu kuću u Sukošanu.

Koncept je proizašao iz konteksta : : postojeće okolne kuće su soliteri velikog formata, a s ceste se njihova prizemna etaža utapa u zelenilo. Iako je kod njih izostao element tradicionalnog oblikovanja (osim kosih krovova), naša kuća mora odašiljati signal pripadnosti lokalnoj tradicionalnoj arhitekturi i istovremeno, veličinom konkurirati susjednim građevinama.

Projektni zadatak:

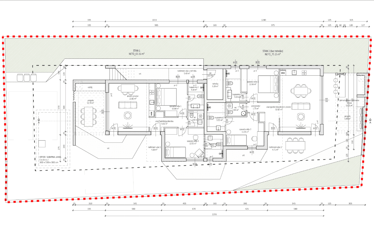
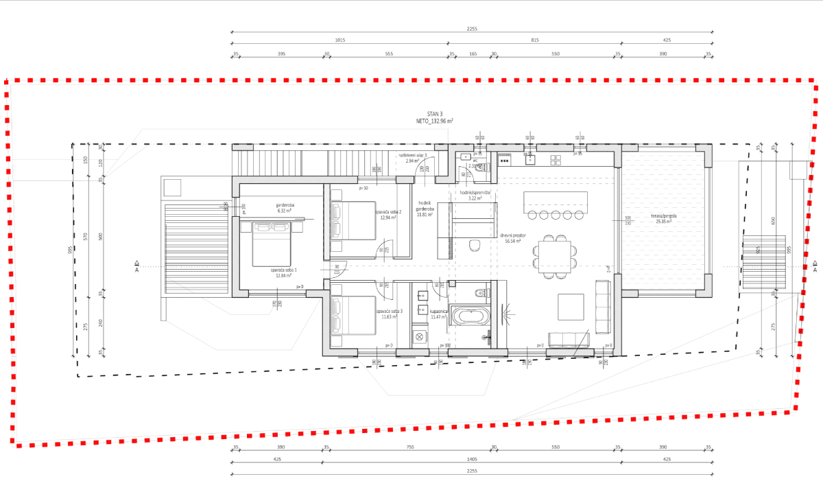
Tri neovisne stambene jedinice koje pružaju ugođaj samostojećih kuća : : bez međusobnog ometanja privatnosti.
Svaka jedinica mora imati svoju terasu s komfornim natkrivenim prostorom i ljetnom kuhinjom.
Dvije jedinice u prizemlju su za najam, dok je ona na katu namijenjena stalnom stanovanju.

Misija ostvarena:

Inspiriran dalmatinskim stambenim sklopovima, ovaj projekt uspješno spaja stambenu funkciju s turističkim najmom.
Prizemne jedinice tvore neutralnu bazu na kojoj se ističe stambeni prostor s dodatnom sobom i natkrivenom terasom.
Volumen primarnog sadržaja za stanovanje je oblikovan kao elementarna kuća s dvostrešnim krovom s crijepom i grubom žbukom u zemljanoj boji.
Volumen sekundarnog sadržaja za najam je u bijeloj žbuci i okružen zelenilom sa što više strana radi ostvarivanja optimalne mikroklime i privatnosti.
Osim u fasadnoj obradi, razlika u sadržaju je vidljiva i u izboru stolarije. Prostor za stanovanje ima drvenu zaokretnu stolariju s griljama, dok jedinice za najam imaju podizno-klizne pvc stijene i pvc prozore s roletama.

Cijela konstrukcija će biti izvedena u drvocomentnom mineraliziranom bloku Iso-span.
Energetske potrebe kuće će se ostvariti solarnim panelima i dizalicama topline.
Privatni vrtovi jedinica u prizemlju udomljavaju autohtone biljke.

Zbog toga je ovaj projekt energetski učinkovit i u skladu s duhom mjesta.